雲展廳

環藝2024-1、2班級CAD優秀作業彙報展

204-2025學年的第2學期,環藝2024級的12兩個班級的同學,學習了《建築CAD制圖》課程。

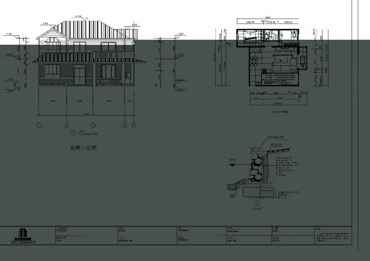
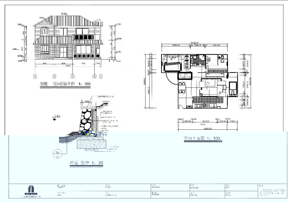
結合環藝專業及該課程的培養目标,我作為授課教師帶領學生進行了相應的實訓。在這個過程中,學生掌握了基本的CAD應用技術,做到了流暢的應用。而且,作為大一的新生,在沒有太多設計基礎的前提下,他們願意挑戰有一定難度的圖紙。比如,實訓項目之“河道駁岸剖面詳圖”,和“彩霞廣場平面”,不僅涉及大量的CAD命令與技巧,還涉及到對技巧的舉一反三;同時涉及到對複雜圖紙的理解,與繪制流程步驟的理解等。

同學們的勇氣和耐心,讓我感覺欣慰。當然,作為教師,我也應當繼續優化課程設計與實訓項目,以更好的服務課程與專業的目标。希望各位領導教師,能夠對我的課程提出意見和建議;也希望同學們多與我反饋,以幫助我進一步提升教學實訓效果。

 

編輯:楊倩

審核:王峰

Baidu
sogou